Unser Haus befindet sich direkt am Kurpark sowie am Vital Resort Oversum, das mit Schwimmbad und Sauna ausgestattet ist, und ist nur 5 Minuten vom Zentrum entfernt. Neben Wintersport und Wandern haben Sie so die Möglichkeit sich zu entspannen oder in der schönen Altstadt von Winterberg einkaufen zu gehen.
Für Ihren Aufenthalt bieten wir Ihnen in unserem Haus drei Ferienwohnungen an. Alle unsere Wohnungen sind Nichtraucherwohnungen, Raucher haben jedoch die Möglichkeit ggf. auf dem Balkon bzw der Terrasse zu rauchen.
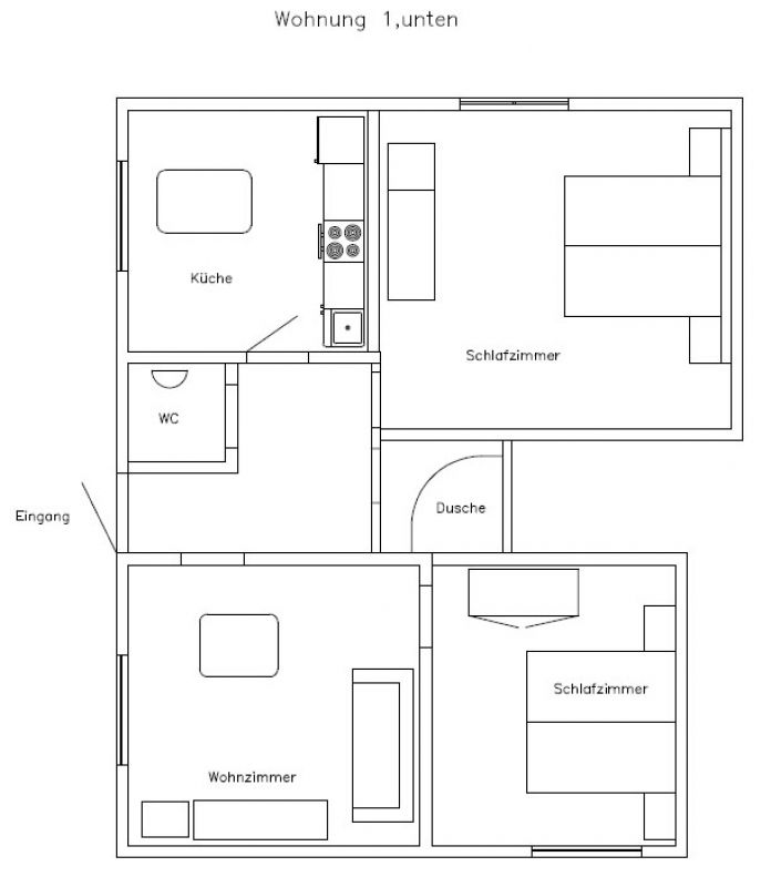
Wohnung 1.
Diese Wohnung liegt im Erdgeschoss. Sie bietet zwei getrennte Schlafzimmer und ist somit für zwei bis vier Personen geeignet. Im Wohnzimmer steht eine Couch und zwei Sessel, ein TV-Gerät sowie eine Mini-Stereoanlage zur Verfügung. Darüber hinaus verfügt die Wohnung über eine komplett eingerichtete Küche mit Essgelegenheit, eine Dusche und ein davon getrenntes WC. Auf der Liegewiese direkt vor dem separaten Eingang können Sie entspannen. Ein Stellplatz befindet sich direkt vor der Wohnung, weitere Parkplätze finden Sie direkt gegenüber.
Wohnung 2.
Die Wohnung 2 liegt im 1.Obergeschoss mit Eingang von der Hellenstraße 60. Sie verfügt über zwei getrennte Schlafzimmer und ist somit für zwei bis vier Personen geeignet. Das hintere Schlafzimmer ist mit einem Balkon ausgestattet. Im Wohnzimmer steht ein Satelliten-TV und eine Mini-Stereoanlage zur Verfügung. Darüber hinaus bietet die Wohnung eine eine komplett eingerichtete Küche mit Essgelegenheit, ein großes Bad mit Dusche und Badewanne. Den Parkplatz finden Sie direkt vorm Haus.
Appartement
Das Appartement liegt im 1. Obergeschoss. Neben einem Schlafzimmer für zwei Personen verfügt die Wohnung über einen Wohnbereich mit komplett eingerichteter Küche sowie SAT-TV und Mini-Stereoanlage. Die Mitbenutzung der Terrasse im Sommer ist möglich. Das komplett neue Bad bietet eine Dusche und ein WC. Der Zugang zum Appartement erfolgt über die Hellenstraße 60.

